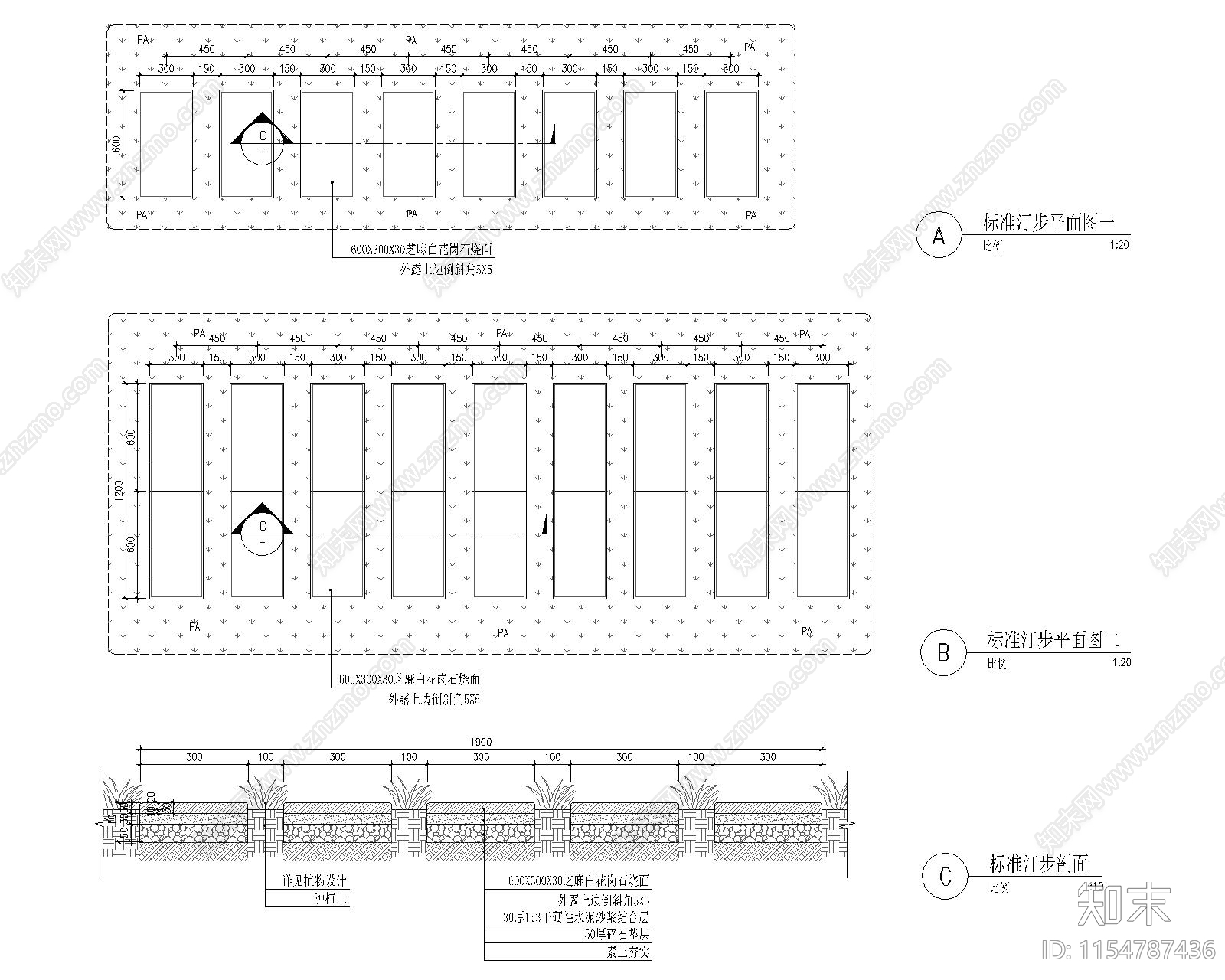
标准汀步详图施工图下载【ID:1154787436】

标准汀步详图CAD下载

ID: 1154787436
复制
上传作者
园林景观施工图园林景观施工图

上传时间2024-03-05

文件大小0.46M

设计风格:现代简约

CAD版本:CAD2014

包含文件:CAD

授权独家

立即下载
收藏
分享
举报
相关推荐
综合
景观小品
综合景观小品
亭子
廊架
景墙
雨棚
围墙
挡土墙
入口
景观坐凳